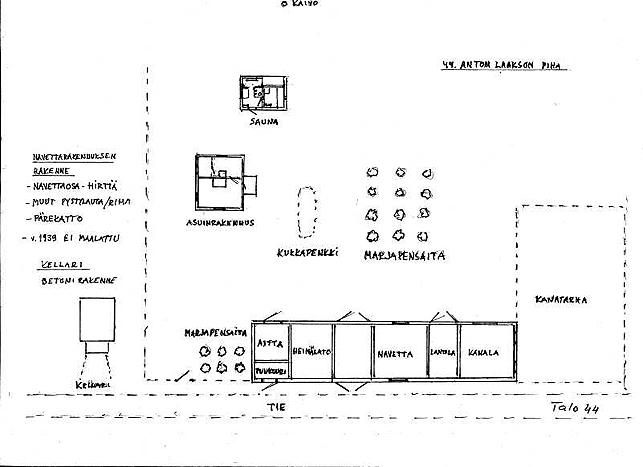
Talo 44 Anton Laakso

     

< < Edellinen | < Edellinen |Seuraava >